C A R L T O N
L I E U
Biarritz
P R O J E T
Rénovation complète d'un studio
S U R F A C E
22m2
D A T E
2023
Gaël vit entre Paris et Biarritz. Il cherche à créer un petit pied-à-terre qui allie confort et élégance. Son objectif est de concevoir un espace aux allures de suite d’hôtel de luxe, où il pourra se ressourcer après ses voyages. Il aspire à un intérieur chic et raffiné, doté de matériaux haut de gamme, de finitions impeccables et d’une ambiance chaleureuse. Chaque détail comptera pour lui, de l’éclairage à la sélection de mobilier, afin de faire de ce lieu un véritable havre de paix, à la fois pratique et esthétique. Ce projet est une occasion pour lui de marier le style de vie urbain à la douceur du littoral, tout en bénéficiant d’un espace de vie qui lui ressemble.
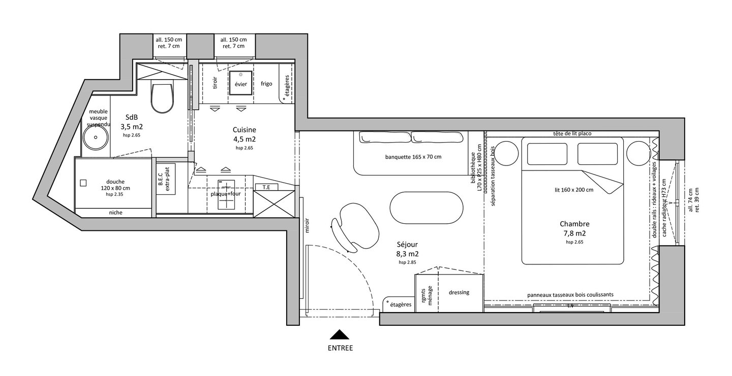
Fonctionnel et cocooning, ce studio emprunte les codes chics des suites d’hotels pour se transformer en havre de douceur. L'aménagement ayant été travaillé en majeure partie sur mesures, rien n'est laissé au hasard et chaque recoin est utilisé de manière adéquate pour un gain de place et une optimisation de l'espace.
Le coté brut et épuré du sol en béton ciré sera réchauffé par le bois, que l'on retrouvera au niveau de tous les meubles créés sur mesures. Une douce palette de tons neutres, réhaussé par des petites touches de couleurs en matières, assurera une ambiance apaisante mais de caractère.
L'éclairage, traité de manière subtile grâce aux différentes sources lumineuses, pourra varier selon les moments de la journée et s'adapter à l'humeur et aux besoins.


U N I V E R S


V I S U E L S 3 D








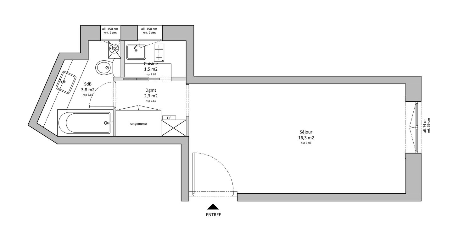
P L A N D ' É T A T D E S L I E U X
P L A N D ' A M É N A G E M E N T P R O J E T
Studio d'Architecture d'intérieur & Design global
Pays Basque & Landes, particuliers et professionnels.
Si vous êtes d'une autre région, n'hésitez pas à me contacter pour échanger.
© 2026. Héliade studio, tous droits réservés.
Contact
bonjour@heliadestudio.com
+33 7 88 29 89 93
