C H I Q U I T O
L I E U
Biarritz
P R O J E T
Rénovation complète de combles
en vue d'un duplex
S U R F A C E
26m2
D A T E
2025 (en cours)
À Biarritz, au dernier étage d’un immeuble chargé de souvenirs, Élodie et Alain ont choisi de redonner vie à l’appartement familial où Alain a grandi. Après des années passées à Paris, ils imaginent ce lieu comme un retour aux sources, un cocon lumineux où renouer avec la douceur de l’océan.
La transformation passe par la récupération des combles : un nouvel étage intimiste, pensé comme une suite parentale de 24 m². Là, chaque détail compte. Sous la pente du toit, l’espace est optimisé grâce à un mobilier sur mesure qui épouse les volumes et sublime les contraintes. Deux velux percent la toiture, apportant un souffle de lumière naturelle, tandis que le sol en béton ciré écru et les murs blancs amplifient la clarté et la sensation d’espace.
Les poutres apparentes en chêne clair deviennent des lignes chaleureuses, reprises dans les aménagements intégrés, comme un fil conducteur entre structure et mobilier. Une note de bleu-gris, posée en touches subtiles sur les murs et le linge de lit, rappelle l’océan, tandis que les touches de bois réchauffe l’ensemble.
Un bureau insonorisé se glisse discrètement dans l’espace : refuge créatif pour la musique, il prolonge l’idée d’un lieu personnel et apaisant. L’éclairage, soigneusement pensé, module les atmosphères, créant tantôt une ambiance feutrée, tantôt un éclat discret, comme une respiration.
Cette suite parentale est un lieu où l’atmosphère se fait douce et paisible, à l’image de ses propriétaires. La palette de couleurs naturelles et douces apporte de la sérénité. Un cocon raffiné, pensé comme un lieu de vacances devenu lieu de vie.


U N I V E R S


V I S U E L S 3 D


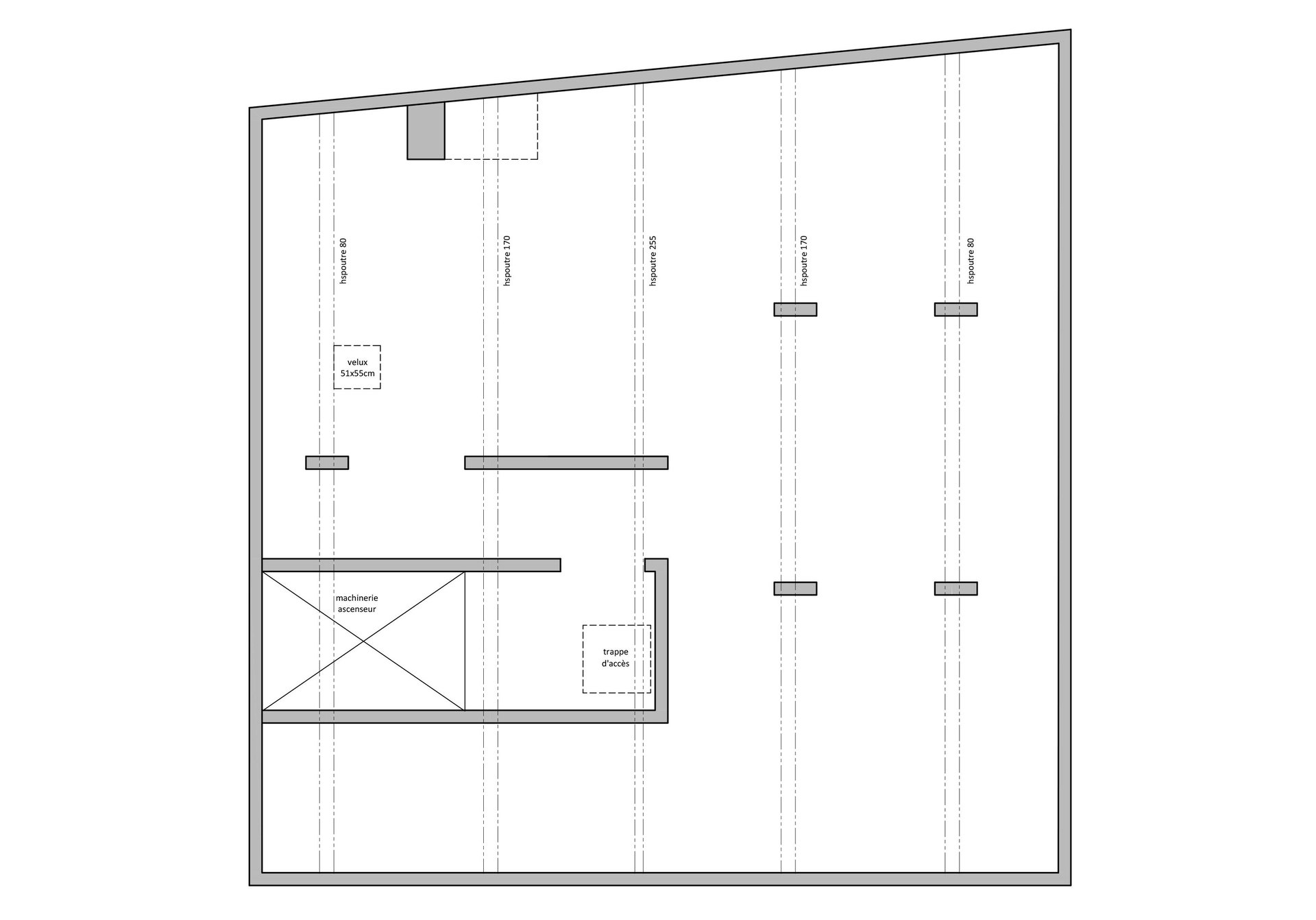
P L A N D ' É T A T D E S L I E U X
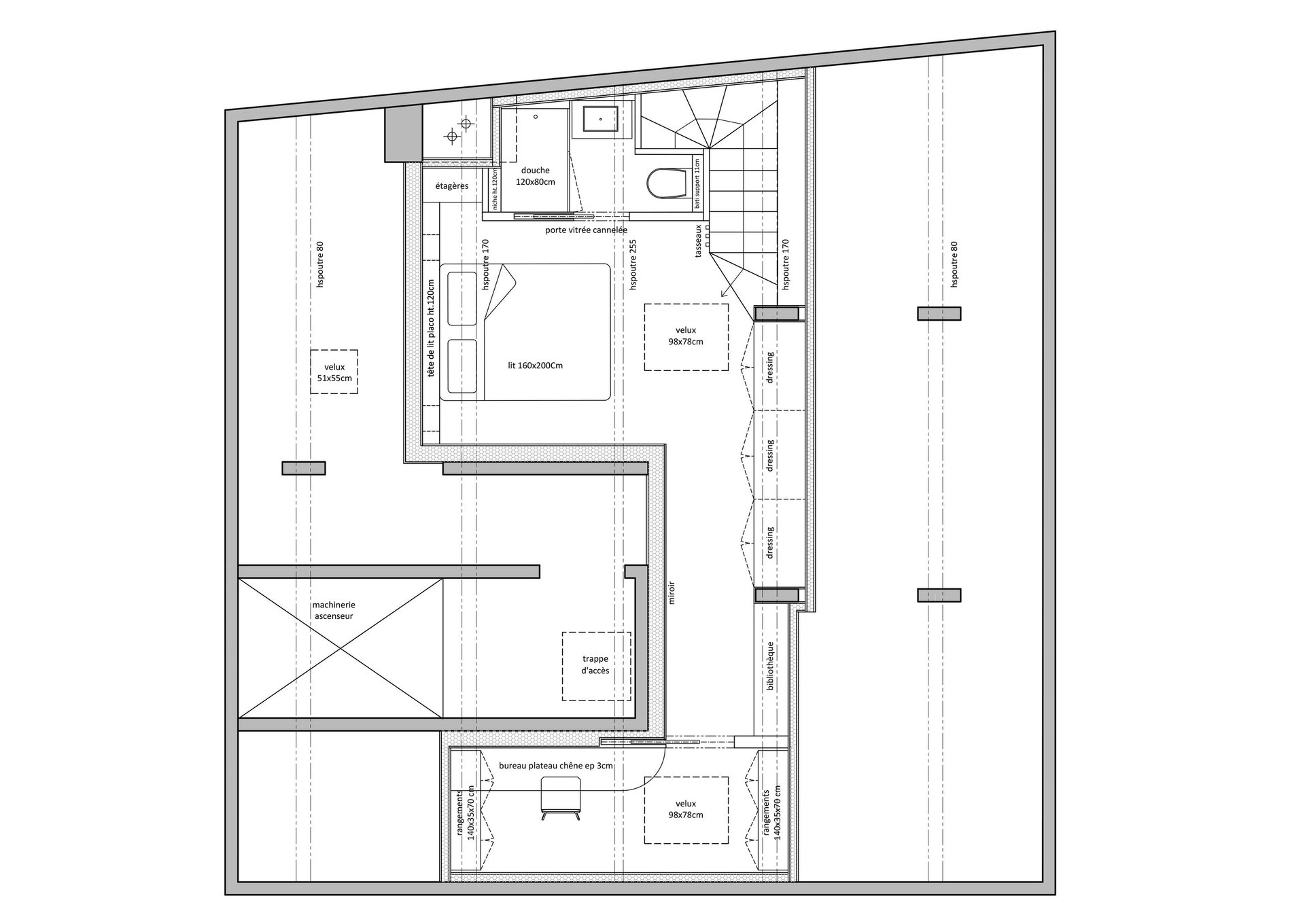
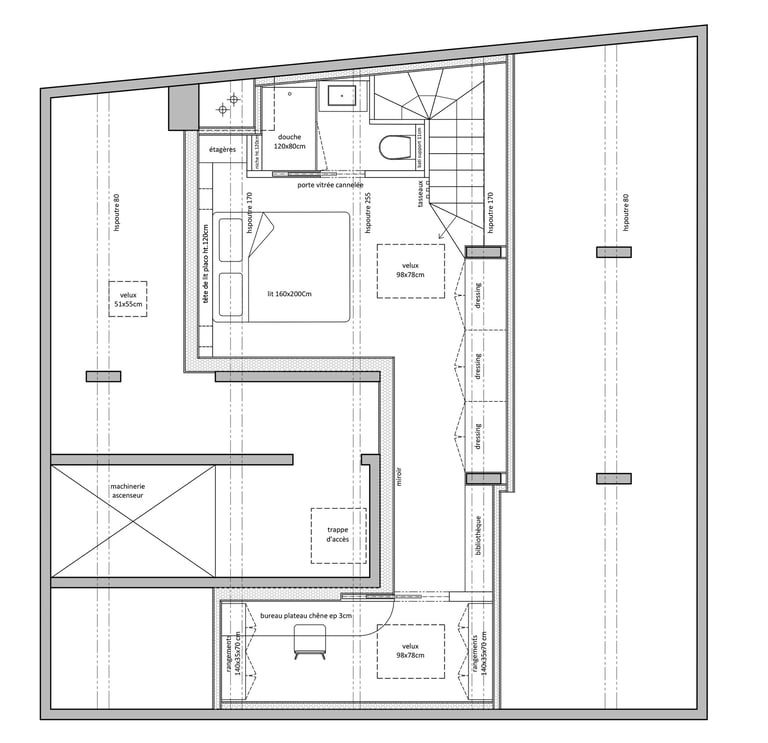
P L A N D ' A M É N A G E M E N T P R O J E T








Studio d'Architecture d'intérieur & Design global
Pays Basque & Landes, particuliers et professionnels.
Si vous êtes d'une autre région, n'hésitez pas à me contacter pour échanger.
© 2026. Héliade studio, tous droits réservés.
Contact
bonjour@heliadestudio.com
+33 7 88 29 89 93
