H O R I Z O N
Pour leur tout premier appartement, Marilyn et Benjamin rêvaient d’un lieu pensé comme une véritable maison. De plain-pied et entièrement réinventé, l’espace a été décloisonné pour repartir d’une page blanche. L’aménagement a été repensé en inversant les volumes : les pièces de vie s’ouvrent désormais côté sud-ouest, baignées de lumière grâce à une grande baie vitrée de 3 mètres donnant sur une terrasse ensoleillée de 50 m².
Derrière une façade de maison basque traditionnelle aux volets rouges, l’intérieur révèle une atmosphère vibrante, où les teintes, couleurs et matériaux se mêlent avec caractère. Dès l’entrée, un fil conducteur noir conduit le regard jusqu’à la cuisine de la même teinte, véritable cœur du lieu. La grande pièce de vie se déploie ensuite en enfilade jusqu’au salon, accessible par deux marches, qui crée une ambiance intime et cocooning. Cet espace bénéficie d’un toit cathédrale et d’une charpente apparente, apportant authenticité et chaleur, tandis que la hauteur sous plafond accentue la sensation de grandeur malgré une surface contenue.
Côté nuit, la suite parentale a conservé ses tomettes d’époque, apportant une touche méditerranéenne pleine de charme. Un dressing vient compléter l’espace, et une arche élégante ouvre sur la salle de bain attenante.
Ce projet raconte l’histoire d’un premier nid, à la fois chaleureux, audacieux et lumineux, où chaque détail a été pensé pour refléter la personnalité de ses propriétaires.
L I E U
Anglet
P R O J E T
Rénovation complète d'un appartement
S U R F A C E
84m2
D A T E
2021




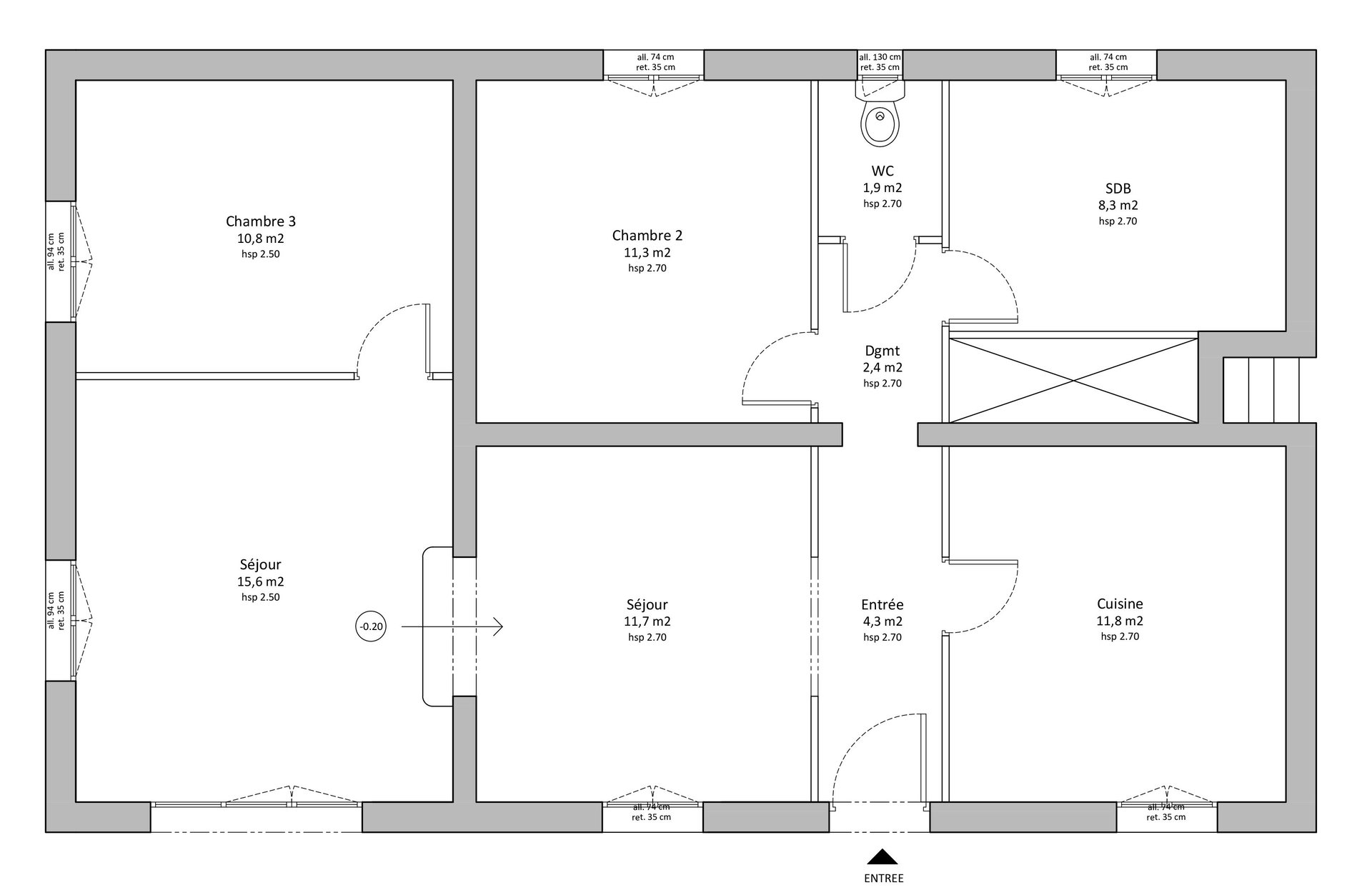
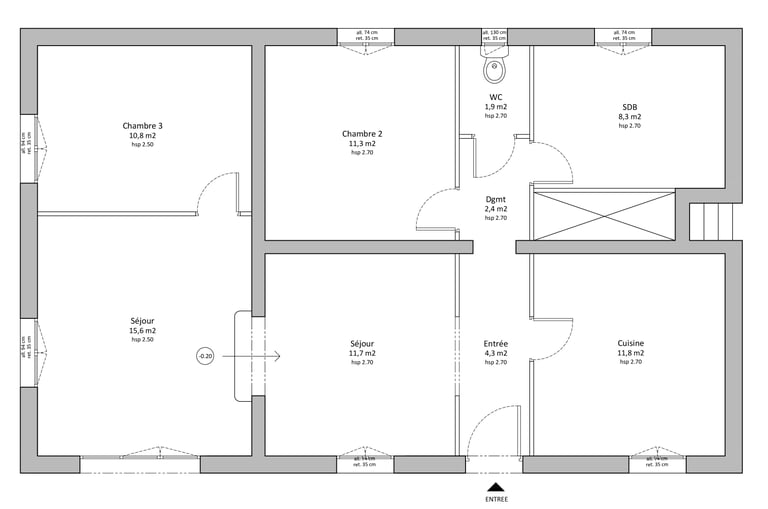
P L A N D ' É T A T D E S L I E U X
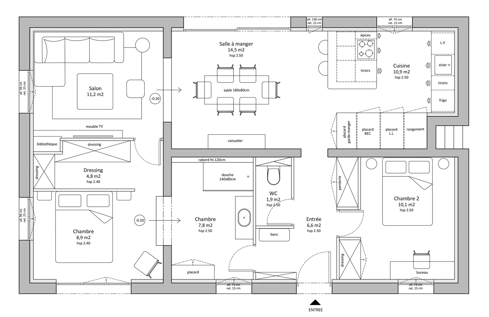
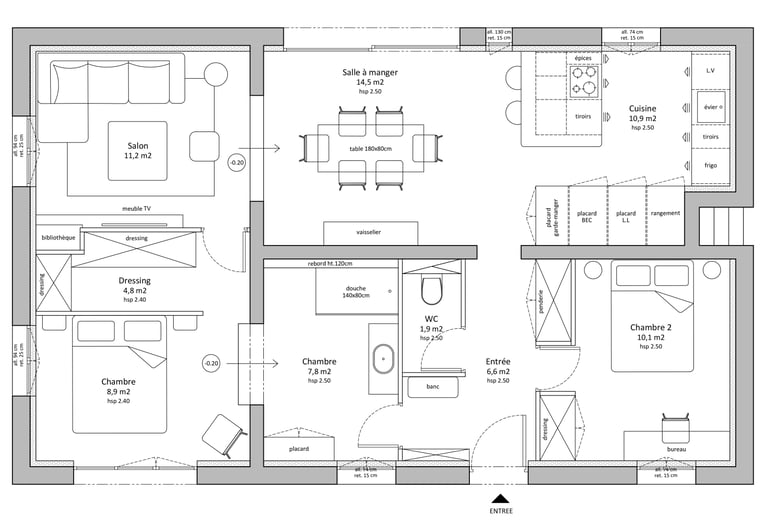
P L A N D ' A M É N A G E M E N T




























Studio d'Architecture d'intérieur & Design global
Pays Basque & Landes, particuliers et professionnels.
Si vous êtes d'une autre région, n'hésitez pas à me contacter pour échanger.
© 2026. Héliade studio, tous droits réservés.
Contact
bonjour@heliadestudio.com
+33 7 88 29 89 93
