M A G I E






































L I E U
Lyon
P R O J E T
Rénovation complète d'un appartement
S U R F A C E
60m2
D A T E
2023






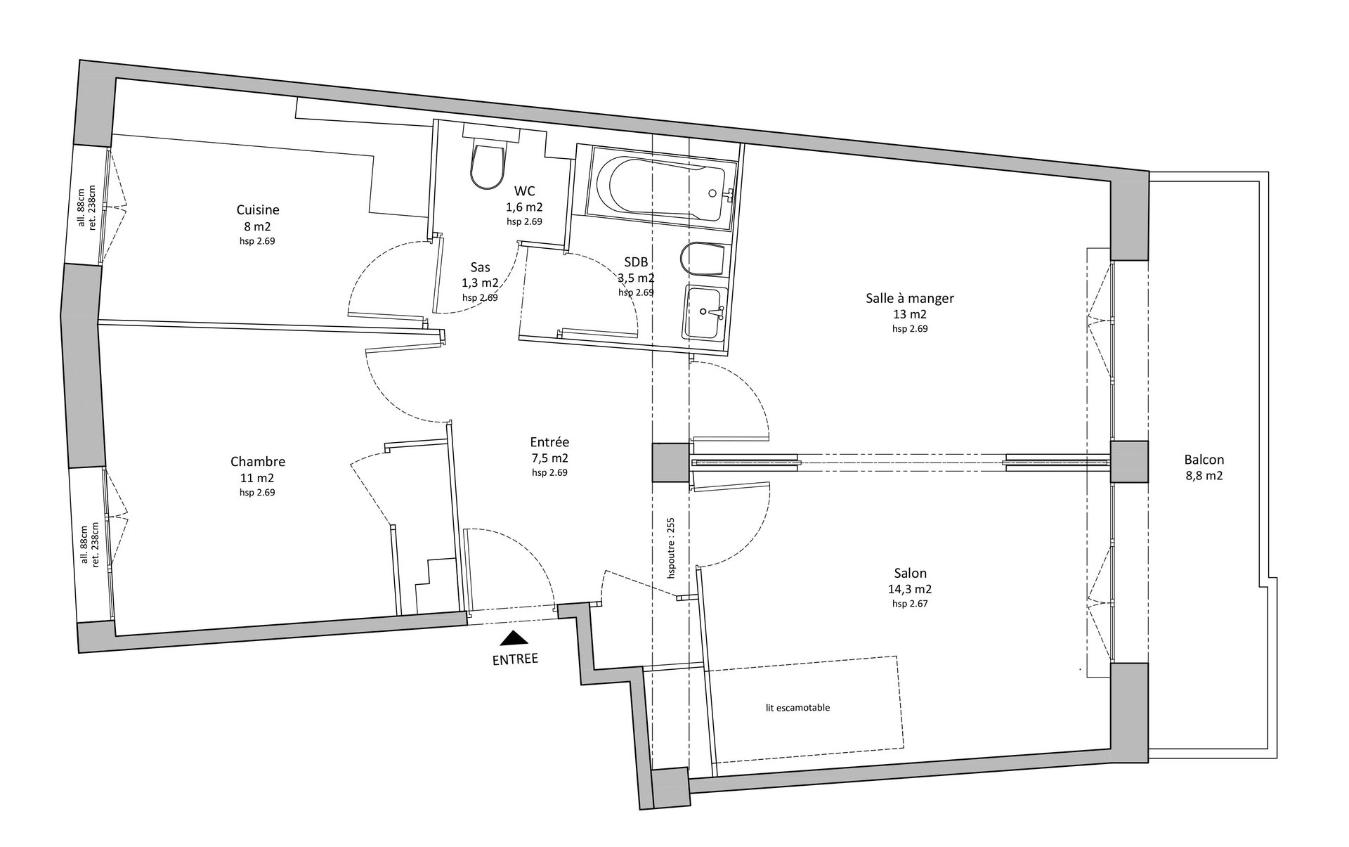
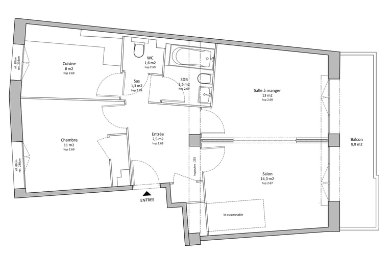
P L A N D ' É T A T D E S L I E U X
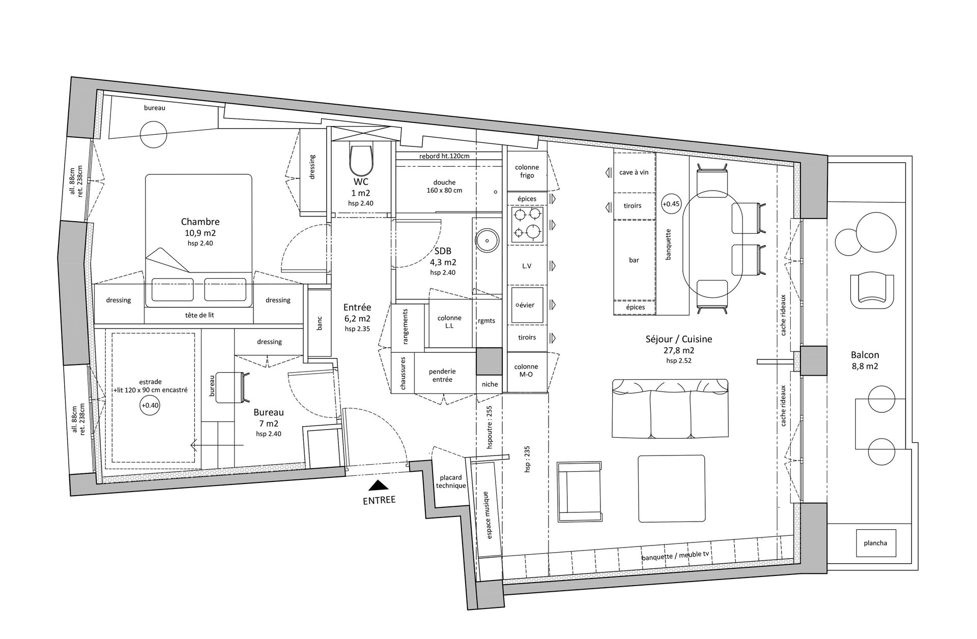
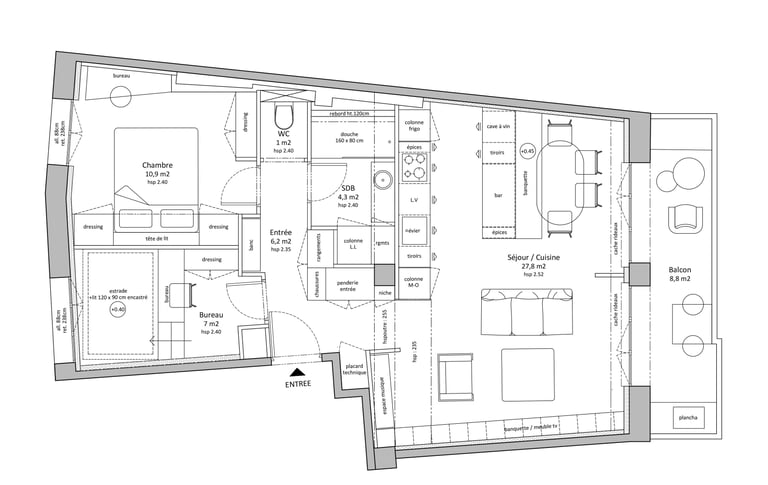
P L A N D ' A M É N A G E M E N T
Marion et Romain, jeunes parents hyperactifs, mènent des carrières intenses tout en télétravaillant la moitié du temps. Leur appartement doit être ultra flexible : un espace pro en semaine, qui leur permet d’être productifs, et un refuge cosy le soir et le week-end, où ils peuvent enfin décrocher. Ils cherchent à créer un intérieur qui s’aligne avec leur vie à 100 à l’heure tout en offrant une bulle de calme pour se poser en famille.
Le projet vise à créer un espace versatile et modulable qui s’adapte aux différents moments de la journée, avec deux chambres. Dans un contexte de vie par intermittence, où le télétravail et les voyages sont fréquents, l’appartement doit offrir un cocon apaisant et réconfortant, avec des matériaux doux et une lumière agréable.
Un espace de coworking flexible est prévu, pouvant accueillir une ou deux personnes, tout en restant propice à des soirées conviviales. La modularité est essentielle : des salles sur demande s’adaptent aux besoins du moment, avec des détails astucieux qui apportent une touche de magie, comme des rangements discrets et des éléments cachés, tels que des portes de bibliothèque.
Au cœur de cet espace, tout repose sur un cube central doré, véritable noyau fonctionnel, où se dissimulent la cuisine, le rangement de l’entrée, une penderie, un espace pour les chaussures, et même la salle de bain. Ce cube s’articule autour de ce point focal, optimisant l’agencement tout en ajoutant une dimension esthétique unique.
Le design met en valeur un contraste entre des matériaux bruts comme le béton et l’OSB, et des éléments doux et réconfortants tels que le velours et la moquette. Cette alchimie crée une atmosphère unique et chaleureuse, où chaque détail contribue à l’esprit enchanteur du lieu. Le minimalisme garantit que rien ne traîne, tout en favorisant un environnement serein. L’accent est également mis sur l’écologie avec l’utilisation de matériaux durables, et une isolation phonique renforcée assure un havre de paix.
© Photographe : Floriane Degouy
Studio d'Architecture d'intérieur & Design global
Pays Basque & Landes, particuliers et professionnels.
Si vous êtes d'une autre région, n'hésitez pas à me contacter pour échanger.
© 2026. Héliade studio, tous droits réservés.
Contact
bonjour@heliadestudio.com
+33 7 88 29 89 93
